Skip to content
Dream Project Bali Type E

Type E Residence

A property at Dream Project Bali in Bali grants a high quality lifestyle at a low cost with cultural richness, diversity, and the stability of low inflation and political risks inside a global top 5 tourist destination.

Pecatu, South Kuta Delivering Q1 2026 30-year leasehold · 1 Type E available

Dream Project Bali Type E Residence

A property at Dream Project Bali in Bali grants a high quality lifestyle at a low cost with cultural richness and diversity while remaining insulated from inflation and political risks.

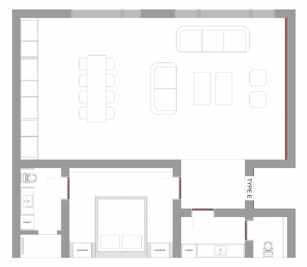
Type E delivers contemporary tropical and urban quality living through a 902 sq ft one-bedroom layout with two bathrooms, built-in kitchens, large windows, uncommon interiors, and quality MEP standards executed by experienced builders with a hospitality license.

Investors tap into a health-focused community, personal vacation home flexibility, accessible long-term visas, significant future valuation, favorable regulations, passive rental income in $/€, and the strength of a diverse portfolio asset.

Design Contemporary tropical · Urban quality living
Bedrooms 1 bedroom suite
Bathrooms 2 bathrooms (ensuite + guest)
Area 902 sq ft (approx. 84 m2)
Kitchen Built-in kitchen + appliances
Finishes European sanitary ware · Uncommon interiors

Moon Building – Type E

Moon Building exteriors, hallways, and lounges are framed by weaved plantation and urban tropical detailing, showcasing the careful planning behind the Type E residence.

Architectural overview of the Dream Project Bali Type E layout and exterior massing.

Why investors choose Dream Project Bali Type E

High Quality Lifestyle

High quality lifestyle at a low cost.

Cultural Richness

Cultural richness and diversity.

Stability

Low inflation and political risks.

Tourism Demand

Global top 5 tourist destination.

Health-Focused Living

Health-focused community.

Personal Vacation Home

Personal vacation home flexibility.

Long-Term Visas

Accessible long term visas.

Future Valuation

Significant future valuation.

Occupancy

Yearly occupancy rate: 70-90%.

Investor Regulations

Favorable investor regulations.

Passive Income

Passive rental income in $/€.

Portfolio Diversity

Diverse portfolio asset.

Contemporary tropical & urban quality living

Dream Project Bali Type E mirrors the brochure's promise of contemporary tropical and urban quality living delivered by experienced architects and builders inside a hospitality-licensed development.

The Project

  • 12-month warranty
  • 30-year leasehold
  • Delivering Q1 2026
  • Pink zone legal permit
  • 25 scooter parking
  • High rise building views
  • Experienced builders
  • Hospitality license
  • High returns potential
  • Experienced architects

The Space

  • Ensuite bathrooms
  • Built-in kitchens
  • Large windows
  • Built-in furniture
  • Urban design
  • Weaved plantation
  • European sanitary ware
  • Concealed aircons
  • Un-common interiors
  • Quality MEP standards

What the Type E residence includes

Interior Package

  • Fitted wardrobes in bedrooms
  • Beds included (no mattress)
  • Built-in furniture throughout
  • Bathroom cabinets + sanitary fixtures

Systems & Equipment

  • Kitchens + appliances
  • Air-conditioners & ventilation systems
  • Concealed aircons
  • Quality MEP standards

Design Elements

  • Large windows for natural light
  • Un-common interiors
  • Urban design with weaved plantation
  • European sanitary ware

Prime Pecatu location in South Kuta

The Dream Project Bali building boasts a prime location in Bingin with a thirty-year leasehold contract, ensuring long-term stability. Nestled amidst lush tropical greenery and situated off a paved main street, the property is surrounded by new developments revitalizing the area.

Site context map highlighting the Dream Project Bali Type E location in Pecatu.
Site Context Map
Aerial drone view of the Dream Project Bali Type E surroundings in Bingin.
Aerial Surroundings

Beaches & Landmarks

  • Balangan Beach · Dreamland Beach
  • Bingin Beach · Uluwatu Beach
  • Padang Padang Beach · Nyang Nyang Beach
  • Krang Boma Cliff · Thomas Beach

Wellness & Lifestyle

  • Santai Spa · Spring Spa Uluwatu
  • Fondu Recovery · Alchemy Uluwatu
  • BGS Bali · Artisan Ungasan
  • Grun Resort · Tana Uluwatu · The Istana · Fresh Market

Sports & Recreation

  • Bali Training Center · Bambu Fitness Bali
  • The Ground Padel Court · Island Padel Uluwatu
  • Pecatu Shooting Club Bali · New Kuta Golf Bali
  • World class surf locations

Secure your investment in Dream Project Bali Type E

Discuss the $170,000 pricing, 30-year leasehold, and turnkey inclusions with our Bali-based team, or schedule a site visit to experience the Type E residence in person. Only 1 unit available.